Projet d’agencement et d’aménagement à petit prix pour un studio de 23m² destiné à la location en meublé à Vincennes. Ou comment optimiser ces précieux mètres carrés pour proposer une vraie cuisine, un espace salon/sommeil et repas/bureau dans une si petite surface malgré une grosse contrainte de bloc béton dans l’espace destiné à la cuisine ? Tout cela, sans oublier les rangements… Défi relevé grâce à un meuble multifonctions à 3 faces !

Quand les propriétaires font l’acquisition de ce studio, ils souhaitent en tirer le meilleur parti mais ne savent pas comment agencer le minuscule coin cuisine avec cette énorme contrainte de bloc béton d’un peu moins d’un mètre cube qui correspond à l’échappée de la cage d’escalier des parties communes de l’immeuble. Impossible donc de le supprimer. La salle d’eau et l’espace réservé à la cuisine sont tellement petits que les branchements du lave linge se situent dans l’angle devant la fenêtre près de l’accès à la salle d’eau mais dans la pièce de vie ! Il fallait trouver une astuce et remédier à cela !










Photos prises lors du relevé








Par chance, le bloc béton fait un peu moins de 90 cm de hauteur donc il passe sous un plan de travail. Ma première idée était donc de le dissimuler sous le plan. Restait à trouver une solution pour ne plus avoir la machine à laver le linge en plein milieu de la pièce sachant qu’il restait un linéaire de 147 cm entre le bloc et le mur de l’entrée pour caser évier, plaques, hotte, petit frigo sous plan, lave linge. Pas de vrai four encastré ici mais un petit grill.
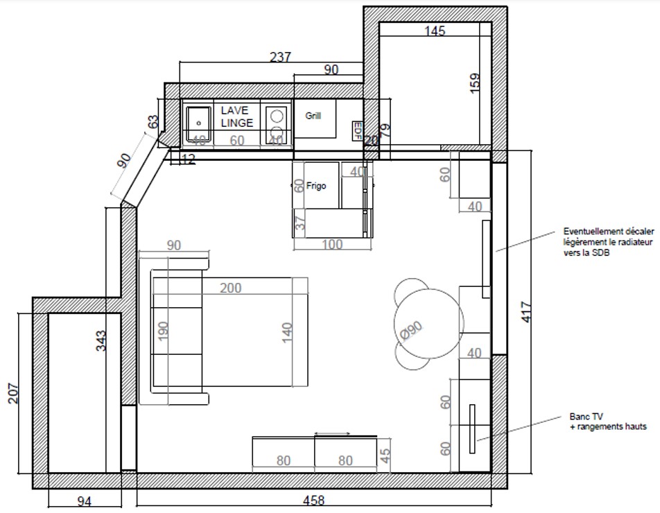
Plan projet

J’ai alors dessiné un meuble multifonctions à 3 faces pour 3 fonctions à partir de caissons IKEA afin de proposer une cuisine avec un grand plan de travail et des rangements destinés à chaque espace. Côté cuisine, le meuble accueille le frigo table top (ce qui laisse la place au lave linge près des arrivées et évacuations d’eau à côté de l’évier pour un minimum de travaux de plomberie). Côté séjour, les caissons servent de buffet pour ranger la vaisselle. Côté fenêtre à côté de la salle d’eau, des placards de profondeur 40 cm servent de rangement pour le linge de toilette. Toute la cuisine et le meuble à 3 faces sont conçus à partir de caissons standards IKEA de la gamme METOD. Seul le plan de travail est réalisé sur-mesure.

On voit bien sur la vue de dessus que ce meuble permet en plus de délimiter un espace entrée et d’isoler un peu la salle d’eau et les WC, sans casser la perspective et sans cacher la lumière de la seule fenêtre du studio. J’ai conçu le reste de l’aménagement avec uniquement des solutions à petit prix.
Images d’inspiration








On reste sur une base de caissons IKEA de la gamme BESTA cette fois pour optimiser le mur de la fenêtre et proposer un banc TV avec rangements au-dessus, qui se prolonge en banquette sous la fenêtre afin d’offrir des assises supplémentaires à la petite table ronde pour les repas ou le télétravail face à la lumière et à la vue sur le jardin des voisins. Tous ces caissons sont autant de rangements pour laisser place nette, indispensable pour gagner visuellement des mètres carrés dans les petites surfaces. Un placard / penderie de faible profondeur (pour la circulation) et un canapé convertible complètent l’aménagement.












