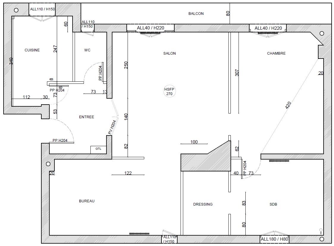
Conception (plans et 3D) pour la rénovation totale d’un appartement ancien de 80m2 dans le 17ème arrondissement de Paris destiné à un couple avec une petite fille de bientôt 3 ans. Les clients souhaitaient associer le charme de l’Haussmannien avec du mobilier design et des références au style Memphis.

Mon fil conducteur sur ce projet sont les rayures noires et blanches (que l’on retrouvera par petites touches dans chaque pièce) et l’alternance entre les lignes droites très géométriques et les courbes. Pour les couleurs, je suis restée sur les couleurs contrastées du style Memphis mais dans des tonalités moins primaires.




Dès l’entrée, on est complètement dans le thème de l’alliance entre l’Haussmannien et le noir et blanc avec le bois clair pour réchauffer l’ambiance. Les moulures et les plinthes sont peintes en noir et le reste de la pièce est blanc. Afin de démarquer l’entrée du reste de l’appartement, c’est la seule pièce du projet dans laquelle il n’y a pas d’autre couleur, mis à part le chêne des placards et de la petite banquette.


La salle de bain (qui a pris place dans l’ancienne cuisine) et les WC, sont les pièces les plus marquées par le style Memphis avec des formes très graphiques noires et blanches et le contraste avec le jaune très lumineux. On n’oublie pas le terrazzo au sol ! J’ai choisi d’implanter la salle de bain dans l’ancienne cuisine car les clients souhaitaient une cuisine ouverte très conviviale. J’ai quand même modifié la porte pour gagner un tout petit peu de d’espace. Les WC attenants n’ont pas bougé et sont exactement assortis à la salle de bain. Afin de transformer la contrainte de la colonne d’évacuation en atout, j’ai décidé de la peindre en noir pour rester dans le concept décoratif.





Les clients voulaient un espace convivial et une lumière traversante. J’ai donc installé la cuisine dans l’ancien bureau en cassant juste un petit bout de cloison pour rendre l’appartement traversant et récupérer la lumière du séjour car la fenêtre de ce côté est petite. Je l’ai implantée en parallèle pour éviter les angles qui sont en général plus coûteux et qui n’apportent pas forcément plus de rangements. Un côté toute hauteur ou presque ; l’autre façon îlot central mais je ne voyais pas l’intérêt d’en faire le tour alors j’ai privilégié les rangements jusqu’au mur.
On retrouve les rayures noires et blanches sur le pied de la table, le terrazzo sur le plan de travail et les codes couleurs du projet : le vert et le bois clair. Pour les lignes géométriques, on les retrouve dans les arches du placard, le quadrillage des chaises Bertoia, les luminaires et le calepinage de la crédence.






La propriétaire, passionnée de photo, travaille en Freelance de chez elle. Elle avait donc besoin d’un espace bureau mais qui pouvait être caché pour faire une coupure le soir et le week-end. J’ai choisi de l’intégrer dans le linéaire qui accueille aussi tout aussi discrètement la télé The Frame (Samsung) qui peut se fondre dans les cadres photos des clients.
Ce bureau que j’ai réalisé sur-mesure est utilisable juste les portes ouvertes ou pivoté devant la fenêtre. Une astuce pour profiter d’un grand espace bureau quand il est ouvert pour un encombrement mini une fois fermé où il disparaît complètement derrière les portes de placard.



Côté décoration, on retrouve toujours le contraste entre les courbes et les formes très rectilignes. J’ai poussé le concept des lignes noires et blanches jusqu’au plafond avec des tasseaux noirs entre lesquels je dissimule des bandeaux LED pour signaler l’espace de circulation. Pour la petite touche Memphis, j’ai peint une partie des moulures en vert, en réponse au canapé et au tapis. Et j’ai ajouté des touches de rose pour le contraste.



La chambre parentale n’a pas changé de place mais de look ! Je me suis servie de la colonne technique pour réaliser une tête de lit et jouer avec cette contrainte en en réalisant une seconde en symétrie mais qui cache un petit rangement derrière une porte coulissante. Entre les 2 colonnes, des tablettes qui font office de chevet ou petite bibliothèque. Les lampes de chevet dépareillées sont suspendues de part et d’autre pour créer une tête de lit très Memphis.
Côté rangement, un grand meuble commode fait face du lit et on retrouve des grands dressings avec des portes sur mesure pour le côté graphique. Un lit coffre complète le tout. Pour la décoration, on reste sur les bases de rose poudré (rideaux, linge de lit) et de vert avec toujours le bois et le noir et blanc pour le fil conducteur du projet.





Quant à la chambre de la petite Garance, bientôt 3 ans, elle a pris place dans l’ancienne grande salle de bain. La cloison a été légèrement reculée vers la cuisine pour agrandir l’espace. La grande contrainte de cette pièce est la hauteur sous allège de 180cm. Il fallait donc trouver une astuce pour profiter de cette fenêtre très en hauteur. J’ai choisi de mettre le lit en mezzanine et de faire passer l’escalier sous la fenêtre. Pour ne pas cacher la lumière naturelle, le garde-corps de l’escalier est en filet blanc tendu dans un cadre en bois qui épouse les marches et celui du lit en tasseaux en haut (espacés de 11 cm max pour des questions de sécurité). Ainsi la petite fille peut voir par la fenêtre depuis sa mezzanine. Optimisation maximale dessous avec une cabane qui se ferme avec des rideaux et du rangement sous les marches. En face, se trouvent un placard toute hauteur et un plateau de bureau dont la hauteur est évolutive. Et il reste un bel espace de jeu au centre ! Une porte verrière (avec rideau occultant) permet de profiter aussi de la lumière de la chambre de papa et maman.
Côté déco, on reste dans les tonalités de rose poudré, vert, bois et blanc. La touche rayée noire et blanche se retrouve sur le tapis et le décor mural derrière le bureau.







L’extérieur n’est pas en reste : le balcon filant est extrêmement étroit. Afin de l’exploiter au mieux, j’ai choisi d’exploiter ses 2 accès (séjour et chambre parentale) pour créer 2 espaces distincts avec 2 ambiances/fonctions. Côté séjour, on retrouve un bar accroché au garde-corps avec des tabourets de bar pour prendre l’apéro ou le petit déjeuner. Côté chambre, des fauteuils bas et une petite table, plutôt pour le café ou la lecture. Et tout le long de la façade, des jardinières en hauteur pour herbes aromatiques et autres fleurs. Toujours en réponse au concept décoratif, on retrouve les lignes noires et blanches dans les fauteuils, le tapis à motif terrazzo, et les couleurs rose et verte.


Il s’agissait de mon projet d’examen donc pas de chantier derrière mais un dossier complet de rénovation comme si tout était vrai avec un vrai brief clients, un vrai budget à respecter et de vraies contraintes techniques.
