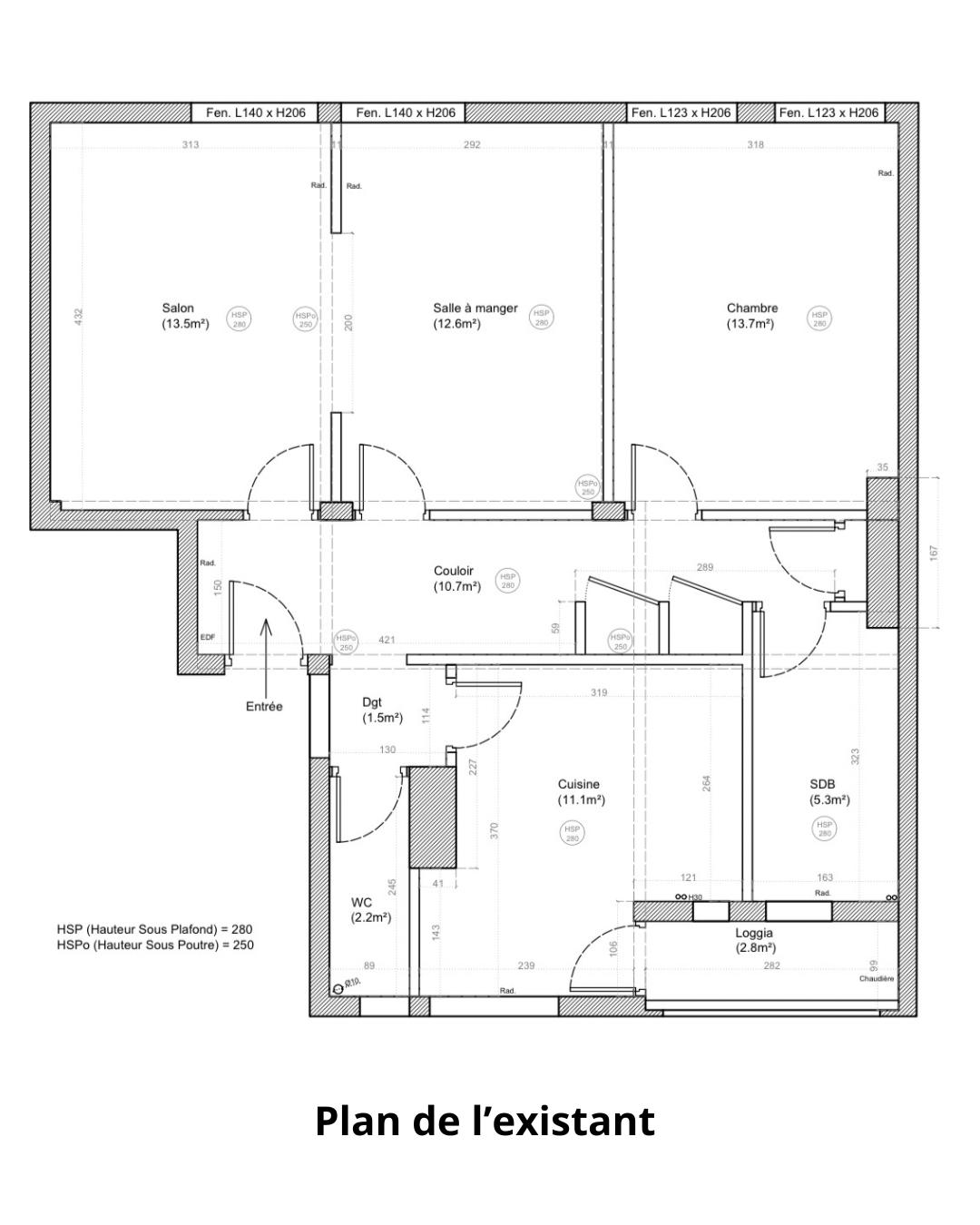
Rénovation totale d’un appartement de 71m² des années 50 destiné à la location meublée en plein centre ville de Dunkerque. Avec une telle surface, il fallait totalement repenser le plan car il ne proposait qu’une seule chambre et un grand couloir le divisait en 2 avec une cuisine séparée et des pièces sombres. Trop de mètres carrés perdus ont pu être astucieusement récupérés et optimisés. L’inversion de la cuisine et de la SDB a été la solution pour le rendre traversant et créer la seconde chambre.

Photos : Julien PEPY
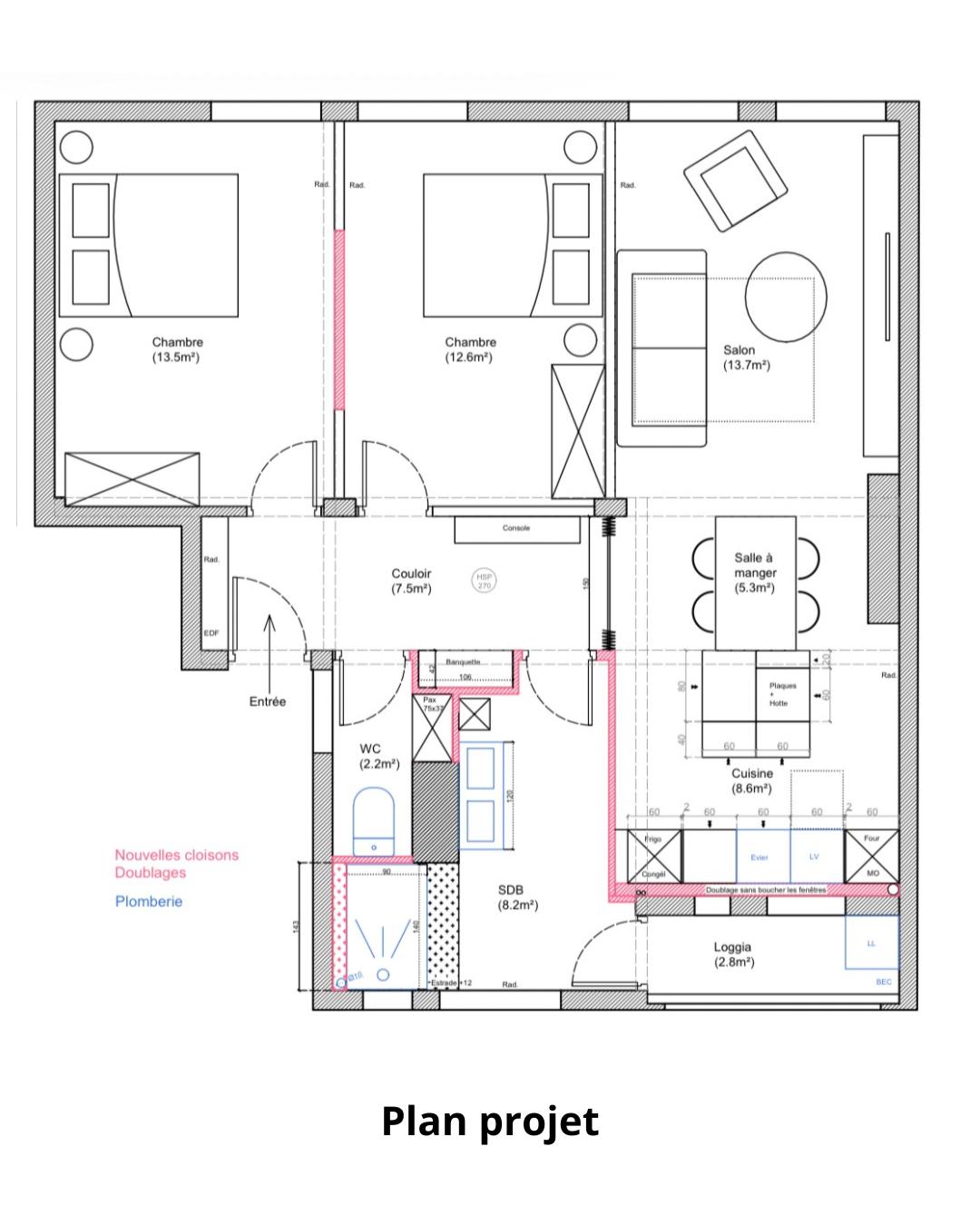
Un pur travail d’architecture intérieure pour créer une seconde chambre sans réduire le séjour
Pour ce projet, afin de conserver une grande pièce de vie mais de proposer 2 vraies chambres, j’ai pris la décision d’inverser complètement le plan. Cela a été possible car les constructions de cette époque proposent une structure avec des poutres et poteaux, sans murs porteurs. J’en ai profité pour récupérer de précieux mètres carrés mal exploités et sombres au bout du couloir et dans des placards peu fonctionnels. Cette rénovation totale a aussi été l’occasion de renforcer l’isolation thermique, ajouter une VMC et refaire toute l’électricité et la plomberie. Côté décoration, rien n’est blanc ! Ma volonté était de peindre toutes les pièces, plafonds compris, dans des blancs cassés différents dans chaque pièce pour une ambiance très chaleureuse.






Le double séjour ouvert a été refermé pour créer 2 belles chambres équitables et la cuisine et la salle de bain ont été inversées, après avoir été recloisonnées pour mieux répartir les surfaces et les fenêtres. J’ai également raccourci les WC car la pièce était très profonde et un petit palier représentait encore de la place perdue. J’ai pu créer une belle douche dans l’espace récupéré.


Théâtraliser l’entrée et lui donner une vraie fonction
Le couloir très austère a été réduit en longueur pour créer un espace repas au fond mais il restait plutôt large. Afin de lui donner une utilité et pour le rendre agréable, j’ai misé sur cette pièce comme élément déclencheur du coup de cœur dès l’entrée. Le plafond a été peint dans un vert olive très chic et tendance, ainsi qu’une légère retombée de plafond, jusque dans l’alcôve qui a été cloisonnée spécialement pour créer un vestiaire avec banquette et patères. En face, une console en bois exotique apporte vie et fonction à cet espace qui distribue l’ensemble de l’appartement. Derrière la porte d’entrée, le tableau électrique a été coffré et j’ai ajouté une tablette au-dessus du radiateur qui peut servir de vide poches.





Les mètres carrés récupérés au fond du couloir ont permis de créer une pièce à vivre traversante
En raccourcissant le couloir au fond et en cassant 3 petits placards qui sentaient l’humidité, j’ai pu récupérer environ 5 mètres carrés pour créer une salle à manger. La table adossée à l’îlot central permet de manger confortablement à 4. Il suffit de la décaler vers le salon et de rajouter les 2 chaises réparties dans les chambres pour passer à 6 couverts !





Pour la cuisine, j’ai voulu éviter les angles qui ne sont pas simples à aménager et qui font souvent perdre en capacité de rangement. J’ai proposé un linéaire simple et droit au fond qui encadre les 2 petites fenêtres. Les 2 colonnes sont aux extrémités et l’évier en partie centrale. Mon astuce pour la monter en gamme a été de plaquer un panneau de finition assorti aux façades au plafond pour y intégrer des éclairages et créer un cadre qui rend l’ensemble plus chaleureux. L’îlot central est certes petit mais offre une grande capacité de rangements et offre un plan de travail généreux grâce à une plaque de cuisson 3 feux gain de place, plus étroite que les standards.





Le salon a pris la place de l’ancienne unique chambre de l’appartement. Les 2 fenêtres ont été changées, ainsi que les volets roulants qui étaient très vétustes. Cet espace est baigné de lumière et a été aménagé avec des meubles plutôt bas afin de ne pas rompre la perspective. Un fauteuil en velours vert apporte une touche de couleur qui fait écho à l’entrée. Les meubles en bois exotique et les nuances de beiges lui confèrent un aspect très cocon. Afin de créer différentes ambiances dans cette pièce encore plus que dans le reste de l’appartement, j’ai misé sur la multiplication des points lumineux. Astuce déco : la création d’un faux plafond était nécessaire dans cet appartement et j’ai anticipé la pose des rideaux dans cette pièce en demandant à l’artisan de le terminer légèrement en retrait du mur de façade afin de dissimuler les tringles.









Une salle de bain très lumineuse et spacieuse avec une décoration soignée
Dans l’ancienne cuisine, que j’ai réduite, j’ai créé une nouvelle salle de bain avec un meuble double vasque et une grande douche à la place des anciens WC qui ont juste avancé d’environ 1 mètre. Il a fallu positionner la douche sur une estrade pour l’évacuation des WC qui ne pouvaient pas être déplacée.





Cette pièce donne sur une loggia qui était déjà isolée et totalement fermée. Comme elle donne sur une cour qui sert de parking, la vue ne justifiait pas d’en conserver l’accès depuis une pièce de vie. J’en ai donc fait une buanderie, ce qui permet d’éloigner le lave-linge. Elle contenait également la chaudière.


Côté décoration, j’ai voulu apporter quelques touches originales avec la crédence cannelée, les luminaires suspendus et les miroirs de forme atypique. Le choix du carrelage effet carreaux de ciment au sol apporte une touche graphique et colorée qui se marie bien avec les teintes chaudes du bois et du beige sur murs et plafond.


Une optimisation des mètres carrés qui a permis de créer une seconde vraie chambre
71m² c’est grand pour un 3 pièces mais assez petit pour un 4 pièces. Avec cette surface, la double exposition et le nombre de fenêtres, j’ai tout de suite voulu créer un 4 pièces, d’autant que la distribution était en étoile. L’ancien double séjour s’imposait pour créer 2 vraies chambres équitables mais je voulais que cela ne soit pas au détriment de la pièce de vie.





C’est donc tout naturellement que la cloison a été refermée entre ces 2 espaces. Pour des questions budgétaires et par souci de rentabilité, la toile de verre sur les murs des 2 futures chambres n’a pas été déposée. Le nouveau morceau de cloison étant lisse, j’ai trouvé l’astuce de l’encadrer de chaque côté par des baguettes afin de créer un cadre dans lequel j’ai posé du papier peint. La contrainte est devenue une astuce déco à moindre coût.





La pièce du milieu est considérée comme la chambre parentale ou principale avec un lit double de 160×200, un dressing et une commode. La seconde est plus modulable puisque l’appartement est destiné à la location meublée. Aussi, il faut anticiper plusieurs usages (famille avec ou sans enfant, télétravail, colocation…). J’ai donc proposé un lit qui peut prendre plusieurs fonctions selon les besoins : lit double ou 2 lits simples selon que l’on assemble ou pas les sommiers ou banquette si on les superpose, ce qui laisse la place de positionner un lit bébé en cas de besoin. Pour les rangements, 2 commodes surmontées de tringles font office de dressing et un petit bureau fait face au pan de papier peint près de la fenêtre. Presque toutes les options sont ainsi envisagées !
Photos avant les travaux














Photos prises pendant les travaux















Ce projet a été un véritable jeu de chaises musicales pour proposer un plan optimisé, une belle lumière et une sensation d’espace avec une décoration soignée pour offrir une location meublée haut de gamme à ses futurs occupants et un meilleur rendement pour les propriétaires qui ont loué très rapidement après la fin des travaux, à un loyer supérieur à leurs prévisions.
