Rénovation, aménagement et décoration de ce 2 pièces de 41m² destiné à la location meublée dans le 7e arrondissement de Paris. Le client est un investisseur qui souhaite louer plus cher que son prédécesseur en proposant des prestations plus haut de gamme avec une vraie cuisine équipée et une nouvelle salle de bain, le tout avec une décoration sobre mais qui a du caractère, afin de plaire au plus grand nombre.

Photos : Olivier HALLOT
Le budget est assez serré (investissement locatif) donc il faut capitaliser sur les atouts et conserver un maximum de ce qui est en bon état ou exploitable : le parquet, les fenêtres double vitrage, le système de chauffage et, après réflexion, le carrelage du sol de la salle de bain et des WC sera conservé.
Photos avant travaux (séjour et cuisine)







Photos avant travaux (chambre et SDB)






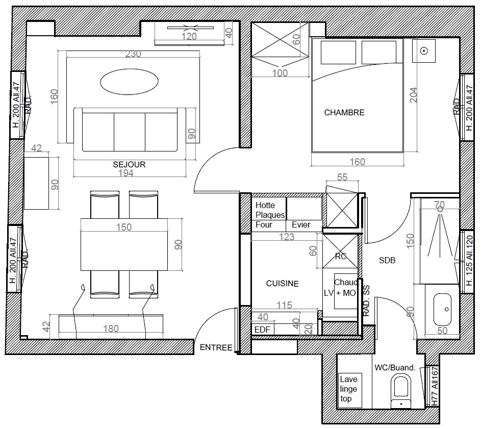
L’essentiel du budget a été consacré à l’agrandissement de la cuisine car au départ elle fait moins de 3m² ! Le véritable défi fut de proposer une cuisine toute équipée dans cet espace minuscule, en récupérant 2/3 du grand placard de la chambre et en poussant littéralement le mur, ainsi que le placard de la SDB. Cette pièce passe ainsi de 2.5 à 4 mètres carrés, ce qui reste un vrai casse-tête. Pour compenser, j’ai dû trouver des astuces pour récupérer l’espace de rangement perdu dans la chambre en proposant une tête de lit asymétrique. Enfin, le client tenait à remplacer les WC par des WC suspendus, donc nous avons décidé, pour des questions budgétaires, de conserver le carrelage blanc au sol de la SDB et des WC et de composer avec ce dernier pour tout de même proposer un vrai changement en attirant l’attention sur les murs.
Plan projet


Photos pendant les travaux











On entre directement dans le double séjour qui est de forme rectangulaire avec 2 fenêtres, ce qui permet de faciliter son aménagement avec un espace repas dès l’entrée, à côté de la cuisine et un espace salon au fond. Entre les 2 fenêtres, j’en ai profité pour installer une console qui peut faire office de bureau d’appoint pour le télétravail. Pas de gros travaux ici, juste de la décoration avec enduits, peintures et sélection de mobilier, luminaires, rideaux et déco. Afin d’exploiter chaque mètre carré, j’ai proposé des petites tablettes en chêne sur-mesure dans le coin du salon, près de la fenêtre.







La cuisine a été digne de Tetris niveau expert ! Le client souhaitait y intégrer la chaudière, un four standard, une double plaque à induction, une hotte intégrée, un évier, un combiné frigo / congélateur et même un lave vaisselle de 60cm ! Le tout, avec un plan de travail et un peu de rangement tout de même. Et pour rendre le challenge encore plus pointu, il nous a fallu ajouter le tableau électrique que nous avions trouvé sur le palier, dans les parties communes (ce qui n’est pas aux normes).







Dans la chambre, on a conservé 1/3 du placard existant mais il fallait récupérer du rangement (on a perdu environ 1 mètre linéaire de penderie au profit de la cuisine). Sa surface ne permet pas de mettre beaucoup de meubles car il faut conserver un passage pour accéder à la salle de bain et aux WC. L’astuce a été d’exploiter la bibliothèque de faible profondeur cachée dans le mur porteur derrière une porte dérobée et d’utiliser ces 25 cm de profondeur pour semi encastrer un dressing du commerce d’un mètre de large. Ainsi il ne dépasse plus de que 35 cm au lieu de 60. Le reste a été exploité en petites étagères assorties au dressing pour servir de chevet d’un côté du lit car celui-ci devait rester centré dans la pièce pour des raisons de circulation. Ainsi, j’ai créé une tête de lit asymétrique, mise en valeur par une simple bande de peinture qui dépasse sur le plafond et le mur du fond pour créer un effet de boîte et donner de la profondeur à la chambre. On a l’impression que le lit s’enfonce dans le mur. Un coffrage en MDF peint de la même couleur au-dessus du placard donne l’impression que tout a été réalisé sur-mesure. De grands tiroirs sous le lit compensent le placard démoli dans la SDB.







Placard de la chambre avant / après


Pour la SDB, le sol en bon état a été conservé mais il est très banal et sans intérêt. Mon idée a été d’attirer l’attention sur les murs avec une couleur marquée plus osée et un calepinage très tendance en pose verticale. Une grande douche avec un receveur sur-mesure a pris la place de l’ancienne baignoire en fonte (et oui, le sol n’était pas carrelé sous la baignoire !). Au fond, derrière la porte miroir que j’ai souhaité conserver également pour le côté pratique, les WC, passés en suspendus, sont assortis à la salle d’eau. Les touche de bois (chêne clair) et de laiton (miroir, luminaires) réchauffent le tout.



J’aime particulièrement travailler sur l’optimisation des petits espaces. Dans ce cas, la prestation de suivi de chantier est essentielle car il faut sans cesse reprendre les côtes pour s’assurer que tout rentre, au fur et à mesure de la démolition et du montage des nouvelles cloisons. La gestion des angles qui ne sont pas toujours droits est primordiale afin de vérifier que toutes les portes et les tiroirs s’ouvrent correctement. L’appartement a été loué rapidement après la fin des travaux avec un loyer bien supérieur à celui pratiqué avant la transformation. Mission accomplie.
Retrouvez l’intégralité des travaux et toutes les étapes du projet ainsi que les vidéos avant et après travaux du projet sur mon compte Instagram
Vidéo « 1 minute pour visiter le projet Bosquet » ici
