Conception (plans, images d’inspiration et 3D) pour un projet de rénovation d’un grand studio de 50m² avec terrasse en première ligne sur le Bassin d’Arcachon. Cette résidence secondaire se trouve dans un immeuble de standing qui date des années 70. Les propriétaires ont pour objectif de le remettre au goût du jour d’ici quelques années et d’avoir un espace modulable pour y séjourner à 2, 4 ou exceptionnellement 5 ou 6 avec aussi un espace repas à l’intérieur.

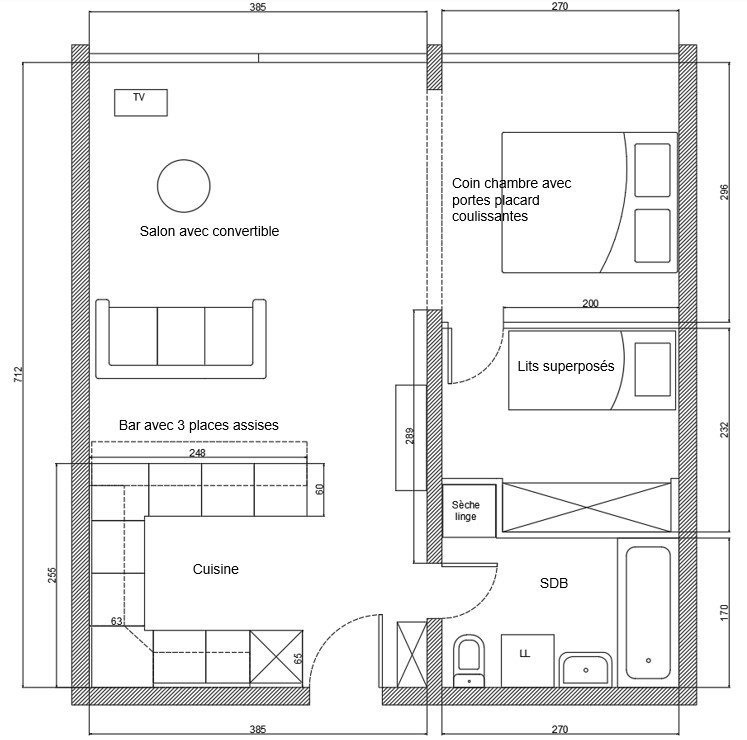
Ce grand studio a déjà bénéficié d’un rafraichissement il y a quelques années, exceptée la salle de bain restée dans son jus. On entre directement dans la cuisine en U avec un bar qui offre 3 places assises en hauteur mais pas de table à manger, excepté le salon de jardin sur la terrasse. On arrive ensuite dans un espace salon et au fond à droite, derrière des portes de placard coulissantes ne s’ouvrant pas totalement, une chambre avec, en enfilade, un petit coin nuit avec 2 lits superposés et un grand placard (pièce quasi aveugle). On accède à la salle de bain à l’entrée.
Photos avant








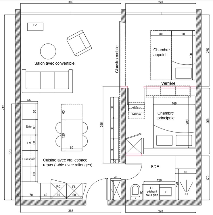
L’atout indéniable de cet appartement est sa grande terrasse de 40m² avec une vue imprenable sur les arbres et le Bassin avec au fond le Cap Ferret. 2 grandes baies vitrées coulissantes permettent de profiter de la vue.

La répartition des espaces est plutôt bien pensée et il n’est pas question de déplacer les pièces d’eau. L’objectif ici est de mieux profiter de la vue avec une pièce de vie plus spacieuse, plus fonctionnelle et plus ouverte. Côté cuisine, on supprime le bar qui coupe la pièce en 2 au profit d’une grande cuisine en L et d’une table au centre avec rallonge pouvant accueillir 6 personnes. Des couleurs claires et du bois permettront de rendre la pièce de vie à la fois chaleureuse et spacieuse.






L’idée a été d’inverser la partie nuit principale (couchage double) avec la partie couchage d’appoint afin de profiter d’un grand séjour en L quand on n’est qu’à 2. Afin de rendre la chambre principale, désormais en second jour, plus agréable, le lit double a été positionné face à la baie vitrée, sur estrade et derrière une verrière afin de profiter de la vue même assis dans le lit. Sous l’estrade : du rangement. Le recoin qui accueillait le sèche linge dans la SDB à été inversé pour être accessible depuis la chambre et créer une penderie.




A la place de l’ancienne chambre principale, on trouve désormais un espace détente / lecture avec une banquette pouvant être transformée en lit 1 ou 2 places. Afin de donner de l’intimité à cet espace, j’ai proposé un grand claustra coulissant derrière une grande bibliothèque légèrement décollée du mur. Ce meuble, dont la structure est coincée entre le sol et le plafond, permet de laisser quelques centimètres pour que la paroi coulisse totalement entre la bibliothèque et la cloison pour une ouverture totale du passage et une perspective décuplée.





Pour la salle d’eau, relooking total avec des couleurs claires et épurées pour donner une plus grande sensation d’espace. Une grande douche plus pratique remplace la baignoire et un lave-linge séchant prend place sous le plan vasque pour un gain de place.


Pas de photos après travaux pour ce projet car il s’agissait d’une mission uniquement de conception. Les travaux seront réalisés d’ici quelques années mais les propriétaires ont désormais une vision assez précise de ce que pourrait devenir leur appartement une fois que leurs enfants auront grandi.
